300萬豪裝何文田頂層複式戶 定制4.5米倒金字塔水晶燈 天台3大功能區融合豪華與實用
發佈時間:06:00 2025-11-23 HKT
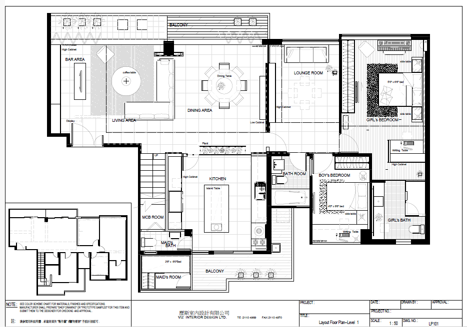
今次參觀何文田君頤峰屋苑32樓頂層複式連天台單位,實用面積約3000方呎。屋主從事美容業,夫婦二人及一子一女同住,希望居所奢華經典,適合招呼朋友,同時要求功能區的設計不會損害單位原有的通透。
屋主共斥資約300萬邀請Viz Design團隊操刀設計三層新居,設計師充分利用頂層單位特有的高樓底,以倒金字塔水晶燈為視覺焦點,並以黑金花雲石包飾原有結構柱,突顯高貴氣派。整體設計兼顧功能與美感,使寬敞空間呈現出華麗而不失實用的氣度。
雲石柱成畫龍點睛之筆
全屋以黑白主調拼木色為基調,輔以大氣紋理營造質感。推門入戶,首先映入眼帘的是門口側的開放式酒吧,紅酒櫃整齊嵌入黑色玻璃牆,吧桌內設有升降電視,可按需要隨時升起使用。
客廳為整個空間的亮點,高達4.5米的倒轉金字塔水晶燈由6米高的樓底垂落,光影璀璨,無論在樓下客飯廳或樓上開放式書房及卡拉OK區,均能仰見其流光。
連接客廳與露台的是兩層樓高落地玻璃窗,視野開揚,維港景色一覽無遺。原本礙眼的結構柱經設計師以黑金花雲石裝飾後,金線紋理反而更突顯奢華感。
客廳比鄰的飯廳擺放圓形餐桌及黑白色高背餐椅子,旁邊牆身採用雲石,並砌有假壁爐。半開放式廚房配備專業級大火力爐具,中島可作為早餐吧檯,並設置電磁爐水龍頭,方便主人邊烹調邊交流。廚房與飯廳則以玻璃夾層植栽作隔斷,既不影響採光,亦可為用餐空間注入一抹自然氣息。設計師表示,大戶型若處理不當反易浪費,通透格局正能發揮其空間優勢。
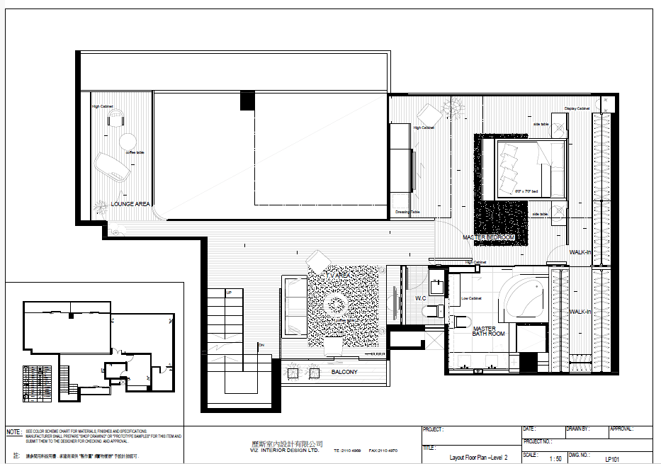
一樓子女房延續空間貫通概念。女兒房採粉紫主調,兒子房用灰藍色為主,均設巨窗及半鏡面牆,令視覺更開闊。二樓的書房與卡拉OK區採全開放式設計,與樓下酒吧區上下呼應。貫穿兩層的樓梯以木條屏風及半透明黑玻璃圍合,既隔斷樓梯與室內的視線干擾,又不阻擋水晶燈的光影滲透。
主人房位於最深處,以絨布菱形拼接牆襯托黑底紅花地毯,營造私密華美氛圍。床背後設南北走向長廊式衣帽間,空間寬裕,滿足夫婦二人收納衣物與飾品的需求。
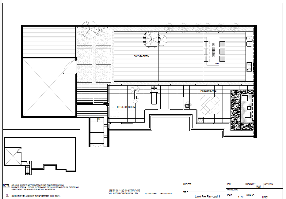
善用天台空間
天台被規劃為聚會、健身及靜修三大功能區域。戶外聚會區鋪設地燈與大量綠植營造氛圍,設有大型餐桌燒及烤設備,適合親朋聚首共賞維港夜景或觀看煙花,也可滿足一家四口的戶外用餐需求;健身區配備運動器材,方便屋主夫婦日常運動;至於茶房內設養魚池與茶台,天花採用可開啟式設計,能直接欣賞天空景色,兼具禪意與休閒感。三大區域互不干擾,靈活滿足住戶需求。
全屋整體裝修總花費約300萬元,其中最主要支出為定制水晶燈與黑金花雲石柱。水晶燈不僅尺寸龐大,需專門設計定制,運輸與安裝過程耗時費力;後者則因選材高質,金線突出,成本亦居高不下。此外,全屋大理石鋪裝、絨布牆面及嵌入式高級傢俬等亦佔去不小預算。



圖片由Viz Design提供

相關文章:回流夫婦85萬重塑畢架山大宅 鍾愛黑白對比元素 書房加設一物增親子互動

相關文章:退休夫婦88萬翻新美孚新邨 稱「人生最後一次裝修」築安心養老宅 一個設計方便輪椅暢行

相關文章:68萬改造400呎蝸居變寵物樂園 巧分4區毛孩暢玩不打擾 起居室特設貓咪通道

相關文章:居屋變身動漫迷Dream House 潮玩如藝術品展示 增隱形空間收納近千款模型

相關文章:北角40年舊樓90萬翻新 打造小朋友遊樂區 設繩網及滑竿滿足攀爬喜好

相關文章:$95萬翻新天后四口之家 750呎兩房變三房滿足女兒 一類藝術工藝最燒錢

相關文章:新婚夫妻68萬 改造600呎安樂窩 工業風遇上胡桃木 巧妙燈裝橫樑增空間感

相關文章:回流夫婦75萬改造美孚新邨 假天花錯覺改善樓底矮 礙眼結構牆變藝術區

相關文章:退休夫婦24萬輕裝修白石角新居 神主牌位設計簡約融入玄關 書房特設地台擴充收納量

相關文章:惜書之人75萬空間大改造 走廊牆暗藏書櫃 特色趟門為女兒改用磁石板

相關文章:舊居55萬大翻新 梗廚改半開放式 玻璃屏風具通透感 電視櫃化身貓跳台

















