將軍澳千呎大宅200萬豪裝 重新規劃4房間隔 打造180度全海景浴室
發佈時間:06:00 2025-12-24 HKT
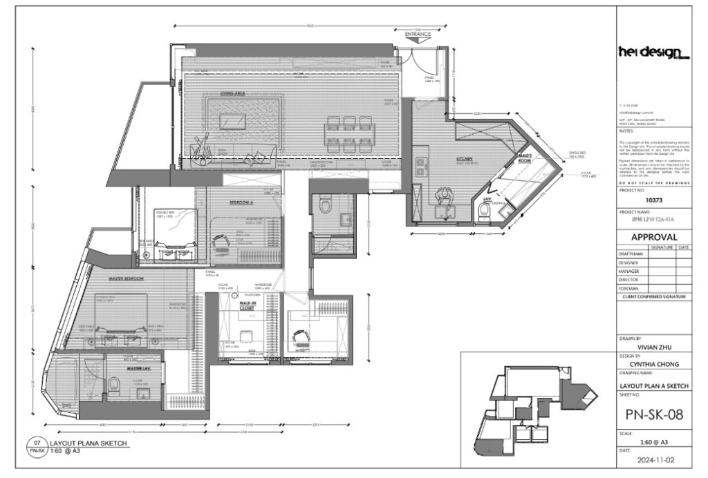
今次參觀將軍澳LP10一個1,521方呎單位,最大特色是毗鄰海邊,坐擁蔚藍景致。屋主一家三口同住,希望將空間結構與生活習慣相契合,斥資200萬元找來Hei Design設計團隊,重新規劃單位間隔,打造了一個180度觀賞海景的浴室,更巧妙利用鏡子對海景的折射及特殊材料等,設計出高雅而實用的理想居所。
電視牆採用藝術漆鋪陳
甫步入單位,狹長的客飯廳成為全屋視覺焦點,但為免有單調感覺,設計師注重運用線條和質感,電視牆採用了藝術漆鋪陳,獨特紋理具質感,旁邊牆身訂製高身櫃,突出線條,凹凸有致,令空間更有深度和層次。
飯廳旁的特色牆上懸掛大型圓形鏡子,成為點睛之筆,不僅放大空間視覺,更巧妙將窗外景色帶入室內,讓無邊海景成為客飯廳的天然裝飾。鏡子後的牆身同樣運用藝術漆,與電視牆形成呼應。餐邊櫃整合酒吧區功能,內嵌玻璃展示櫃與掛杯架,日常小酌或招待親友時,增添生活儀式感。
點擊即睇客飯廳設計:
拆除女兒房套廁改讀書區
單位原本為4房間隔,設有一間主人房及一間套房,並有兩間面積較小的客房。除了主人房和套房各有一個廁所,緊鄰客飯廳還有一個客廁。設計師根據屋主家庭結構,拆除女兒房內的套廁,避免廁所冗餘,多出的空間則作為讀書區,並用地台將其分隔開來,空間更顯開闊。其次,設計師還打通主人房與相鄰客房,將客房所在區域改造為獨立衣帽間,更符合屋主一家三口的實際需求。
緊鄰客廳的女兒房是全屋最溫柔的區域,以粉色調為主,搭配牆身的拱形線條設計,營造夢幻活潑的氛圍。除了用寢區地台劃分功能區域,設計師還用訂製書桌及木櫃統一全屋風格,兼具收納功用。傢俬統一採用低飽和度粉色,中和童趣的同時,與客飯廳的高雅基調呼應。
設計師將主人房與相鄰房間打通後,開闢出的步入式衣帽間採用兩面玻璃門設計,增強通透感。衣帽間外靠牆的高身儲物櫃與主人床相隔不遠,通道稍顯狹窄,設計師則在櫃身下方做中空處理,使通道變得闊落。連接著儲物櫃的開放式掛衣區,則設在靠近主浴室的位置,方便洗澡前後存取衣物,融入了屋主日常使用習慣。
用地台抬高淋浴及浴缸區
至於主浴室空間較大,設計師用地台抬高淋浴及浴缸區,以凸顯環繞浴缸的180度海景,另外也做到乾濕分明。設計師選擇了大面積石紋岩板作為洗手台的材料,配上黃洞石特色牆,簡單又高雅。設計師表示,希望營造出一種高雅但又不太花巧的感覺。
另外,設計師還在全屋多處佈置氛圍燈,以柔和光線配合淺色系基調與質感材質,凸顯高雅又溫暖的格調。
該單位裝修總計花費200萬元,包含大型拆改工程、全屋訂制傢俬、牆身特殊用料等。設計風格高雅簡潔,沒有過度浮誇的裝飾,主要透過氛圍燈帶及燈具的運用,加上藝術漆、岩板、玻璃等材質凸顯質感,以光線與海景為天然襯托,讓1,521方呎大宅既舒適又具有儀式感,滿足了屋主一家三口的實用需求,生動詮釋「設計回應生活」的理念。
圖片由Hei Design設計團隊提供
相關文章:潮玩夫婦60萬打造小天地 大量LED燈帶凸顯收藏品 配合日式木器更通透

相關文章:70萬翻新九龍塘近半世紀舊樓 648呎三房改兩房 擴大客飯廳 滿足音響發燒友情侶
相關文章:滲水舊樓變日式田園風新居 重點解決採光問題 設計師:業主美學要求高

相關文章:回流夫婦85萬重塑畢架山大宅 鍾愛黑白對比元素 書房加設一物增親子互動

相關文章:退休夫婦88萬翻新美孚新邨 稱「人生最後一次裝修」築安心養老宅 一個設計方便輪椅暢行

相關文章:68萬改造400呎蝸居變寵物樂園 巧分4區毛孩暢玩不打擾 起居室特設貓咪通道

相關文章:居屋變身動漫迷Dream House 潮玩如藝術品展示 增隱形空間收納近千款模型

相關文章:北角40年舊樓90萬翻新 打造小朋友遊樂區 設繩網及滑竿滿足攀爬喜好

相關文章:$95萬翻新天后四口之家 750呎兩房變三房滿足女兒 一類藝術工藝最燒錢

相關文章:新婚夫妻68萬 改造600呎安樂窩 工業風遇上胡桃木 巧妙燈裝橫樑增空間感

相關文章:回流夫婦75萬改造美孚新邨 假天花錯覺改善樓底矮 礙眼結構牆變藝術區

相關文章:退休夫婦24萬輕裝修白石角新居 神主牌位設計簡約融入玄關 書房特設地台擴充收納量

相關文章:惜書之人75萬空間大改造 走廊牆暗藏書櫃 特色趟門為女兒改用磁石板

相關文章:舊居55萬大翻新 梗廚改半開放式 玻璃屏風具通透感 電視櫃化身貓跳台

















