山頂MOUNT NICHOLSON頂層特色戶6.09億招標沽 每呎14.4萬創亞洲新高
更新時間:18:31 2025-05-23 HKT
發佈時間:18:31 2025-05-23 HKT
發佈時間:18:31 2025-05-23 HKT
由九倉及南豐合作發展、由會德豐地產負責銷售的山頂超級豪宅MOUNT NICHOLSON剛招標售出2期頂層特色單位Penthouse B連雙車位,呎價逾14.4萬元,刷新項目2021年時創下的紀錄,再創亞洲一手分層住宅呎價新高。
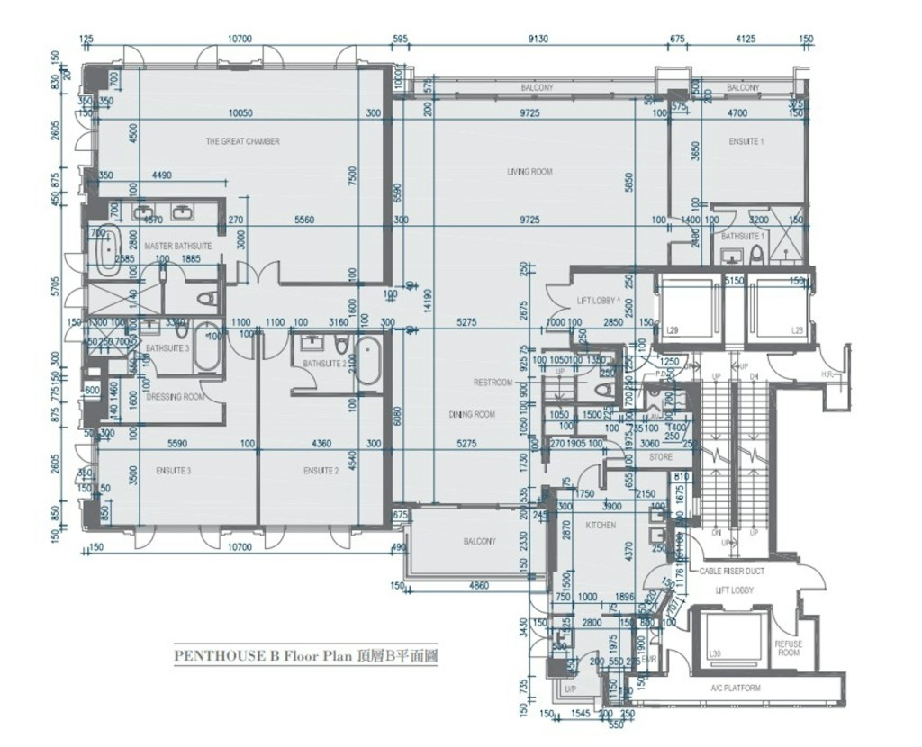
上述標售特色單位Penthouse B,為項目首度售出頂層特色大宅,單位面積4,217方呎,屬4套房間隔,其中一間設有衣帽間,單位備有私人電梯大堂,附連3,112方呎天台,住戶可經由單位內置的樓梯前往天台,今日以6.09億元成交,呎價144,415元。

上述標售特色單位Penthouse B,為項目首度售出頂層特色大宅,單位面積4,217方呎,屬4套房間隔。

單位備有私人電梯大堂,附連3,112方呎天台,住戶可經由單位內置的樓梯前往天台。
對上的亞洲一手分層住宅呎價紀錄,同樣由MOUNT NICHOLSON 所創,項目於2021年11月曾透過招標售出16樓D室,面積4,544方呎,成交價逾6.39億元,呎價約14.08萬元,是次成交單位將紀錄再推高近3,615元。

MOUNT NICHOLSON分3期發展,共提供67伙。
作為「亞洲樓王」,MOUNT NICHOLSON目前仍是全亞洲分層戶呎價最貴的屋苑,業主位位非富則貴,包括賭王四太梁安琪及大鴻輝興業創辦人兼主席梁紹鴻等。
最Hit
利是公價2026︱一封$50趨勢增?!工人姐姐/大廈保安要封幾多?
2026-02-11 16:27 HKT
港大教授帶隊創業 先進半導體熱管理技術 破解電動車與AI「過熱死穴」
2026-02-11 08:00 HKT
港姐冠軍回流溫哥華當地產經紀 一條龍服務推介樓盤另送揀校攻略 朱千雪給予高度評價
2026-02-11 11:00 HKT

















