跑马地320呎单位打造酒店风 拆墙改窗尽览马场景 浅色家私平衡橙绿墙身
发布时间:06:00 2025-11-26 HKT
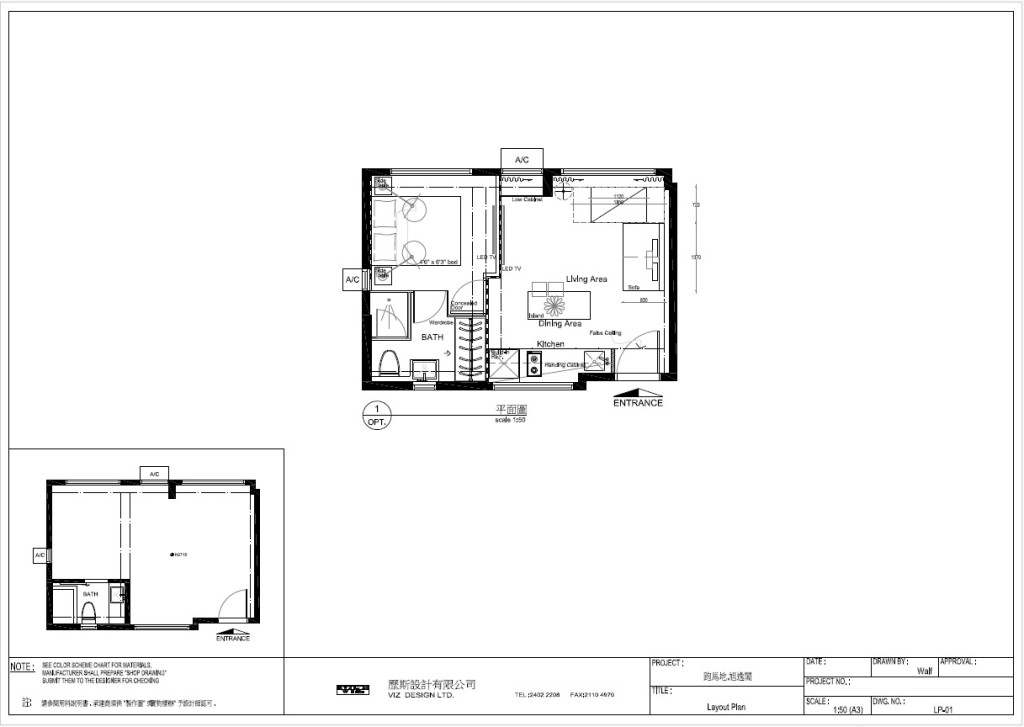
今次造访跑马地旭日阁一个320方呎一厅一房单位,屋主为单身男士,物品不多,想将居所改造成酒店风格、适合朋友小聚饮食的所在。他透过杂志找到Viz Design设计团队翻新旧单位,想要融入绿色、橙色等自然活力色彩。此外,单位窗外就是马场,屋主亦想最大化欣赏跑马地马场景观。
原单位为「大睡房、小客厅」格局,窗扇较小,洗手间以墙壁隔开,显得狭窄昏暗。设计师通过拆墙、拓窗改变原有格局,用浅色家私与大面积的橙绿撞色墙面进行平衡,又通过玻璃作为浴室隔断,高效运用空间,辅以隐藏收纳等手段,总改造花费约60万(连材料),其中最贵的云石工程占10万元,将狭小旧单位打造成杂合自然生命力与现代感的「酒店风」居所。

点击即睇装修前单位内景:
点击即睇装修后单位内景:
一进门抬头 可见马场全景
推门进入单位室内,正前方一抬头映入眼帘的是窗外一览无遗的跑马地马场景观。单位原本客厅空间窄、窗户不算大,马场景观被严重遮挡,设计师首要动作便是拆除客厅与睡房的隔墙,拓展客厅空间,还将原有窄窗更换为宽阔玻璃窗,让屋主一进门就能饱览开阔景色,将单位价值被最大化利用。
设计师以绿色作为客厅主色,在厨房橱柜与沙发背景墙采用整体绿色墙身设计,既呼应屋主偏爱的绿色,又与窗外马场景致形成室内外自然感联动,搭配可透视的黑色帷幕和浅灰色梳化,平衡绿色带来的视觉冲击感,保护隐私及遮光的同时,亦不会阻挡景观。
黑色大理石及镜面门分隔客卧
客厅与房间的分隔改用黑色大理石作为隔断墙,客厅电视悬挂其上。拆除后的墙身尚有承重窄墙保留,于是在一侧放置了矮橱用于收纳。
大理石墙体旁则安装了镜面门,平时镜面可延伸视觉空间,推开即为房间入口,一举两得。黑色大理石不仅起到空间分界作用,其天然的白色山水纹路为客厅亦增添了精致而不失自然的质感。
睡房内则延续撞色设计,墙身满足屋主要求,采用鲜艳橙色,自带阳光一般洒落的生命力,设计师还在墙面设置壁灯,光线投射在墙面时,进一步强化「温暖生机」的氛围。
与以往用墙面分隔洗手间不同,浴室采用半透明玻璃隔断,视觉上不压迫,同时将衣柜嵌入浴室洗手盆左侧,白色柜体与浴室墙面融为一体,另有一格收纳空间用于放置屋主洗浴用品,镜面趟门丝滑开合,兼具遮挡和全身镜效用。
厨房吧桌内藏洗衣机与雪柜
门口左手边是开放式厨房和吧桌,吧桌兼具酒吧与用餐功能,朋友造访时可围坐小酌,平时也能作为简单餐台。吧桌下方藏有洗衣机与雪柜,是全屋最有隐藏收纳巧思之处。为了使空间不显得杂乱,连吧椅都选择了透明材质。
设计师表示,全屋所有物品均受屋主委托亲自采购,小到牙签盒,大到客厅电视及音响。至于睡房电视下方音响悬空嵌入墙身,浴室花洒及冷气机均做嵌入墙身的处理,衣柜旁则掏空预留了凹入的空间,隐藏DVD机与额外音响设备,亦是为了避免设备凸出占用空间,突显酒店质感。
据透露,全屋装修连材料总花费约60万元,其中最贵的是占10万的云石工程,因全屋地面均采用大理石铺设而成,再加上黑色大理石隔断墙,用料多,材料成本本身也贵。其余预算主要用于定制橱柜(含隐藏式家电柜)、宽幅玻璃窗更换、全屋软装(从床品、灯具到牙签盒、餐桌布均由设计团队全权挑选)及旧单位拆改工程。
图片由Viz Design设计团队提供

相关文章:300万豪装何文田顶层复式户 定制4.5米倒金字塔水晶灯 天台3大功能区融合豪华与实用

相关文章:回流夫妇85万重塑毕架山大宅 钟爱黑白对比元素 书房加设一物增亲子互动

相关文章:退休夫妇88万翻新美孚新邨 称「人生最后一次装修」筑安心养老宅 一个设计方便轮椅畅行

相关文章:68万改造400呎蜗居变宠物乐园 巧分4区毛孩畅玩不打扰 起居室特设猫咪通道

相关文章:居屋变身动漫迷Dream House 潮玩如艺术品展示 增隐形空间收纳近千款模型

相关文章:北角40年旧楼90万翻新 打造小朋友游乐区 设绳网及滑竿满足攀爬喜好

相关文章:$95万翻新天后四口之家 750呎两房变三房满足女儿 一类艺术工艺最烧钱

相关文章:新婚夫妻68万 改造600呎安乐窝 工业风遇上胡桃木 巧妙灯装横梁增空间感

相关文章:回流夫妇75万改造美孚新邨 假天花错觉改善楼底矮 碍眼结构墙变艺术区

相关文章:退休夫妇24万轻装修白石角新居 神主牌位设计简约融入玄关 书房特设地台扩充收纳量

相关文章:惜书之人75万空间大改造 走廊墙暗藏书柜 特色趟门为女儿改用磁石板

相关文章:旧居55万大翻新 梗厨改半开放式 玻璃屏风具通透感 电视柜化身猫跳台

















