70万翻新九龙塘近半世纪旧楼 648呎三房改两房 扩大客饭厅 满足音响发烧友情侣
发布时间:06:00 2025-12-14 HKT
今次参观的九龙塘碧丽阁单位有48年楼龄,面积648方呎,一对热爱音乐的本地情侣购入单位后,认为原本的装修设计和间隔不合用,于是邀请Page Design设计团队,斥资约70万,将原本三房格局改为两房两厅一厕,原本无用的走廊空间转化为实用空间,扩大的客饭厅再配置了立体音响系统。全屋以香槟色与灰色为主调,营造出低调型格又兼具轻奢质感的生活空间。
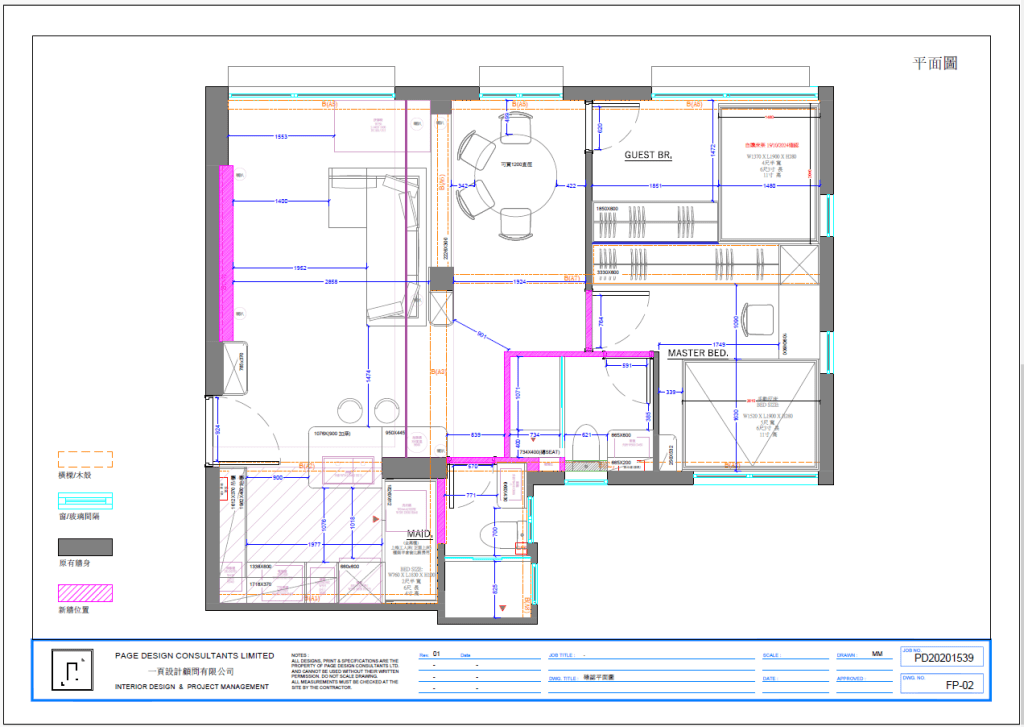
重新布局免浪费走廊空间
单位原本为三房,客厅狭窄且动线凌乱,客人如要使用洗手间,需经过厨房才能到达,既不方便又浪费空间。由于屋主只需主人房及一间客房,设计总监Kay决定拆除紧邻客厅的一间房,改造成饭厅区域,同时调整厕所与房门朝向,使动线更流畅。
装修前:
装修后:
设计师首先将最靠近客厅的房间完全拆除,改造成饭厅区域。然后调整房门与客厕朝向,优化动线,原本通向长走廊的主人房、客房门,全部改为面朝客厅,形成「眼镜房」格局,原本的走廊空间则划入主人房与客厕内,令两个空间都更宽敞舒适。
客厕原设于厨房尽头,狭窄难用,所以在重新分区后,设计师将客厕入口移至饭厅旁吧枱位置,朝向客厅,无论家人使用还是客人造访,进出都更方便,空间分区也更清晰。
屋主喜爱与朋友相聚,设计师拆掉厨房间隔墙,改为开放式设计,配合吧枱及扩建后的饭厅,一入门便能感受到开阔的空间感,屋主备餐时可与客人一边谈天,一边享受音乐,整个空间气氛愉悦自在。另外,厨房以全嵌入式设计收纳家电,中岛延伸出吧桌,既是早餐枱亦可待客用。
客饭厅中间的承重柱无法拆除,设计师就巧妙以灰色木饰包裹,改造成高身饰柜,用作展示美酒收藏,既遮盖结构又增添个性,将原本的硬伤变成设计亮点。
嵌入式音响组合多达五个配件
全屋最大特色是「隐形音响系统」。屋主夫妇热爱音乐,对音质要求极高。电视墙上嵌入五组音响配件,饭厅墙面亦设环绕喇叭,营造立体音效。
设计师特意将客厅电视墙墙身加厚,将喇叭嵌入墙内,仅露出正面,既不破坏墙面整体感,又能确保音响效果,外观型格,成为全屋风格的亮点。
为确保声效与美观兼备,设计师特意加厚电视墙,将喇叭隐藏墙内,只露出前端,令墙身整洁俐落。墙面选用防水防污布质墙纸,灰色斑驳纹理具艺术感之余,也易于日常清洁。
香槟灰基调 展现低调奢华
全屋采用柔和的香槟色与灰色木饰作主基调,搭配石纹材质与布质墙纸,搭配百叶窗帘,氛围沉稳舒适。木器工程为最大支出项,连同灯槽共约22万元,几乎所有家私均为度身订制,确保空间利用与风格一致。
设计总监Kay特别指出,主人房与客房之间未采用传统砖墙,而是采用了软隔断。中间夹层填入隔音棉,既能储物又具隔音效果。客厅沙发背后设半腰柜以作收纳,天花加入隐藏灯槽与木饰包边,灯光柔和不刺眼。
至于客厅沙发背后设置横向半腰柜,用于收纳杂物与餐厨用品。天花部分包装木器并预留灯槽,搭配隐藏式灯具,光线柔和不刺眼。全屋门扇也均为定制木器,与柜体色调一致,整体感更强。
整个工程历时约4个多月,总花费约70万元。除了木器工程之外,主要开支包括墙身及间格改动、旧窗更换、防水墙纸及智能变色灯具。设计师通过对旧楼格局的大胆调整与细节定制,最终让 648呎单位既能满足情侣同住和家人探访的需求,又完美契合屋主的生活爱好。
图片由Page Design设计团队提供
相关文章:渗水旧楼变日式田园风新居 重点解决采光问题 设计师:业主美学要求高

相关文章:回流夫妇85万重塑毕架山大宅 钟爱黑白对比元素 书房加设一物增亲子互动

相关文章:退休夫妇88万翻新美孚新邨 称「人生最后一次装修」筑安心养老宅 一个设计方便轮椅畅行

相关文章:68万改造400呎蜗居变宠物乐园 巧分4区毛孩畅玩不打扰 起居室特设猫咪通道

相关文章:居屋变身动漫迷Dream House 潮玩如艺术品展示 增隐形空间收纳近千款模型

相关文章:北角40年旧楼90万翻新 打造小朋友游乐区 设绳网及滑竿满足攀爬喜好

相关文章:$95万翻新天后四口之家 750呎两房变三房满足女儿 一类艺术工艺最烧钱

相关文章:新婚夫妻68万 改造600呎安乐窝 工业风遇上胡桃木 巧妙灯装横梁增空间感

相关文章:回流夫妇75万改造美孚新邨 假天花错觉改善楼底矮 碍眼结构墙变艺术区

相关文章:退休夫妇24万轻装修白石角新居 神主牌位设计简约融入玄关 书房特设地台扩充收纳量

相关文章:惜书之人75万空间大改造 走廊墙暗藏书柜 特色趟门为女儿改用磁石板

相关文章:旧居55万大翻新 梗厨改半开放式 玻璃屏风具通透感 电视柜化身猫跳台

















